Újépítésű ingatlanok
Ingatlan adatlapja
Hirdetés azonosítója: 7003/BD |
|||||||
| Ajánlat: | Eladó ikerház | ||||||
| Elhelyezkedés: | Pest megye Kiskunlacháza |
||||||
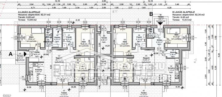
| Alapterület: | 100 m² | ||||||
| Telekterület: | 1230 m² | ||||||
| Irányár: | 61,00 millió Ft. | ||||||
| Szobák száma: | 4 | ||||||
| Egyéb helyiség(ek): |
amerikai konyha |
||||||
| Tetőtér: | nem beépíthető | ||||||
| Szintek: | 1 | ||||||
| Állapota: | új építésű | ||||||
| Fűtés típusa: | hőszivattyú | ||||||
| Komfort: | összkomfortos | ||||||
| Parkolás: | megvásárolható | ||||||
| Kilátás: | kertre néző | ||||||
Érdeklődni |
|||||||
|
|||||||
Részletes leírás |
|||||||
|
NAGY TELEKES ENERGIA TAKARÉKOS HÁZAK! KÖTÖTTPÁLYÁS KÖZLEKEDÉSSEL!
ENERGIA TAKARÉKOS HÁZAK!! CÉGES KIVITELEZÉS, 5%ÁFA, CSOK ! ZÖLD HITEL! Kiskunlacháza, új építésű részén , új házak között, tároló kapcsolatos ikerház, összesen 1230 nm-es, telekkel, zárt autóbeállóval eladó! Rövid műszaki leírás: A ház, a 2025-év szabványnak megfelelően, 30 cm vastag POROTHERM téglafalazattal, 15 cm-es, szigeteléssel, 25 cm-es, födém szigeteléssel, 3 rétegű, üvegezéssel ellátott nyílászárók, kerültek felhasználásra. A talaj hidege ellen 10 cm vastagságban lépésálló polisztirol nyújt védelmet. Az épület fűtéséről, meleg víz ellátásáról, NAPELEMMEL KOMBINÁLHATÓ, HŐSZIVATTYÚ gondoskodik, melynek, hő leadása padlón keresztül megoldott. Az ár kulcsrakészen értendő: festés, burkolás, kapcsolók, konnektorok, gyengeáram, TV-Internet, szaniterek beépítése, melyet részletes műszaki tartalom rögzít. Melegburkolat:4000Ft/nm, hidegburkolat 5000Ft/nm-ig vevő választja ki saját ízlésére. A kerítés, elemes rendszerrel épül, kiskapu, nagykapu, zártszelvény, színes lemezborítást kap. Az épület fűtéséről, meleg víz ellátásáról, (H TARIFA) NAPELEMMEL KOMBINÁLHATÓ, HŐSZIVATTYÚ gondoskodik, melynek, hő leadása padlón keresztül megoldott. (ÖSSZ REZSI 30 Ezer Ft,TV-Internet,FŰTÉS, MELEG VÍZ, VÍZ CSATORNA SZEMÉT DÍJ KÖZLEKEDÉS, FIGYELEM! Kiskunlacháza, Délpest agglomeráció, folyamatosan fejlődő városa, melyet az év végén átadásra kerülő KELEBIA projekt vasútközlekedés fog még vonzóbbá tenni a fővárosból kikötözők számára. A két ház teljesen szeparált, nincs egymáson keresztül átjárás, telek adottságai miatt akár DUPLA GARÁZS is elfér. Az ingatlan, céges kivitelezés, így minden állami támogatás igényelhető. |
|||||||
Ajánlás ismerősnek
Az alábbi adatlap kitöltésével ismerőse figyelmébe ajánlhatja a(z) 7003/BD azonosítójú ingatlant
Adatlap
Kérjük, minden mezőt töltsön ki!
















