Újépítésű ingatlanok
Ingatlan adatlapja
Hirdetés azonosítója: 7003/PDG |
|||||||
| Ajánlat: | Eladó sorház | ||||||
| Elhelyezkedés: | Pest megye Kiskunlacháza |
||||||
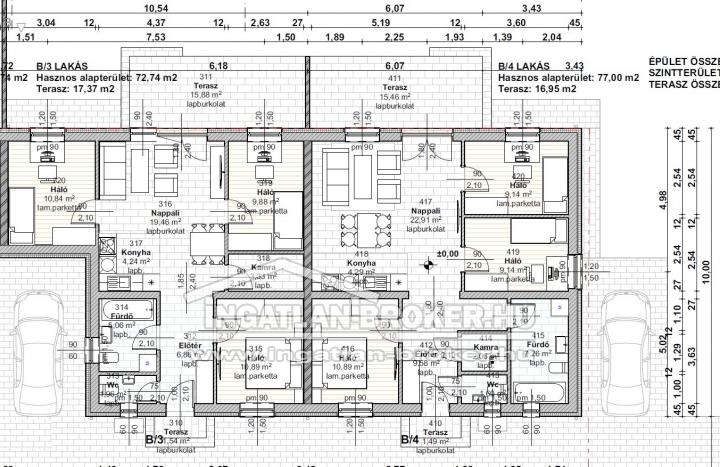
| Alapterület: | 88 m² | ||||||
| Telekterület: | 230 m² | ||||||
| Irányár: | 57,75 millió Ft. | ||||||
| Szobák száma: | 4 | ||||||
| Egyéb helyiség(ek): |
amerikai konyha |
||||||
| Tetőtér: | nem beépíthető | ||||||
| Szintek: | 1 | ||||||
| Állapota: | új építésű | ||||||
| Fűtés típusa: | hőszivattyú | ||||||
| Komfort: | összkomfortos | ||||||
| Parkolás: | telken saját nyitott beálló | ||||||
| Kilátás: | kertre néző | ||||||
Érdeklődni |
|||||||
|
|||||||
Részletes leírás |
|||||||
|
10% ÖNERŐ !
VASÚTI KÖZLEKEDÉS BUDAPEST FERENCVÁROS, KELETI PÁLYAUDVAR H-TARIFA, NAPELEMMEL KOMBINÁLHATÓ, HŐSZIVATTYÚS RENDSZER! (A+)68KW energetika ! TEKINTSE MEG TOVÁBBI KÍNÁLATOM! Kiskunlacháza, központ közeli részén, 4 szobás, sorház, középső és szélső lakása zárt saját autóbeállóval eladó! Rövid műszaki leírás: A ház, a 2025-év szabványnak megfelelően, 30 cm vastag POROTHERM téglafalazattal, 10 cm-es, GRAFITOS szigeteléssel, 20 cm-es, födém szigeteléssel, 3 rétegű, üvegezéssel ellátott nyílászárók, kerültek felhasználásra. A talaj hidege ellen 10 cm vastagságban lépésálló polisztirol nyújt védelmet. Az épület fűtéséről, meleg víz ellátásáról, (H TARIFA) NAPELEMMEL KOMBINÁLHATÓ, HŐSZIVATTYÚ gondoskodik, melynek, hő leadása padlón keresztül megoldott. A lakóparkban korábban beköltözött vevőink tapasztalata alapján az összes rezsi 30 Ezer Ft,TV-Internet,FŰTÉS, MELEG VÍZ, VÍZ CSATORNA SZEMÉT DÍJ 2025 év végén átadják a megújult Kelebia vasútrendszert, így a Budapestre ingázók Metrókapcsolatos közlekedéssel jutnak a fővárosba. A kerítés, elemes rendszerrel épül, kiskapu, nagykapu, zártszelvény, színes lemezborítást kap. KÖZPONT,ÓVODA,SPÁR,ISKOLA, MINDEN SÉTÁVAL ELÉRHETŐ! Az ingatlan önerős beruházás, céges kivitelezés, így minden állami támogatás igényelhető és csupán 10 % önerő szükséges. A képek a már lefoglalt lakásokról készülnek, burkolatokat, beltéri ajtókat, szanitereket vevőink választották ki. . |
|||||||
Ajánlás ismerősnek
Az alábbi adatlap kitöltésével ismerőse figyelmébe ajánlhatja a(z) 7003/PDG azonosítójú ingatlant
Adatlap
Kérjük, minden mezőt töltsön ki!



























