Újépítésű ingatlanok
Ingatlan adatlapja
Hirdetés azonosítója: 7356 |
|||||||
| Ajánlat: | Eladó ikerház | ||||||
| Elhelyezkedés: | Pest megye Halásztelek |
||||||
| Alapterület: | 137 m² | ||||||
| Telekterület: | 450 m² | ||||||
| Irányár: | 126,00 millió Ft. | ||||||
| Szobák száma: | 4 | ||||||
| Egyéb helyiség(ek): |
amerikai konyha |
||||||
| Tetőtér: | nem beépíthető | ||||||
| Szintek: | 1 | ||||||
| Állapota: | új építésű | ||||||
| Fűtés típusa: | hőszivattyú | ||||||
| Komfort: | duplakomfortos | ||||||
| Parkolás: | önálló garázs | ||||||
| Kilátás: | kertre néző | ||||||
Érdeklődni |
|||||||
|
|||||||
Részletes leírás |
|||||||
|
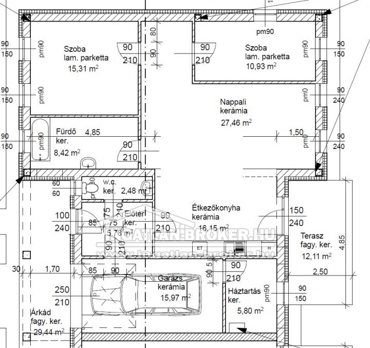
Minimál rezsi! Hőszivattyús otthon, most még személyre szabható belsővel
Budapest közvetlen közelében, Halásztelek abszolút központjában, karnyújtásnyira mindenhez, eladásra kínáljuk ezt a nettó 137 nm-es, modern stílusú, garázsos ikerházat. Az ingatlant a tágas terek és a legmodernebb energetikai megoldások harmóniája jellemzi. Főbb jellemzők: •Térkihasználás: Világos, amerikai konyhás nappali + 3 teljes értékű hálószoba. •Fenntarthatóság: A 2026-os szabványoknak megfelelő hőszivattyús fűtésrendszer, amely napelemmel is kombinálható – garantáltan alacsony rezsiköltség. •Szigetelés: 15 cm-es homlokzati és 30 cm-es födémszigetelés a maximális hőmegtartásért. •Extra tartalom: 3 rétegű, rejtett redőnytokos nyílászárók . Saját ízlésére formálva: A burkolatoktól a beltéri ajtókig mindent Ön választhat ki, sőt, a belső válaszfalak elhelyezésénél is figyelembe vesszük egyedi igényeit. Mivel az ingatlan Halásztelek frekventált, de csendes részén helyezkedik el, így vállalkozásra is kiválóan alkalmas. A tágas garázs, bármilyen üzleti tevékenységre, kisebb átalakítás után, kiválóan alkalmas. Az ikerház másik fele is eladó ami 110 nm, nappali + 2 szobás+garázsos, melynek az ára 99,9Millió Ft Várjuk hívását, ha fontos Önnek a minőségi kivitelezés és a fenntarthatóság! |
|||||||
Ajánlás ismerősnek
Az alábbi adatlap kitöltésével ismerőse figyelmébe ajánlhatja a(z) 7356 azonosítójú ingatlant
Adatlap
Kérjük, minden mezőt töltsön ki!





