Újépítésű ingatlanok
Ingatlan adatlapja
Hirdetés azonosítója: 7221/K30 |
|||||||
| Ajánlat: | Eladó családi ház | ||||||
| Elhelyezkedés: | Pest megye Szigetszentmiklós |
||||||
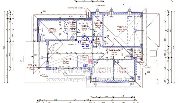
| Alapterület: | 150 m² | ||||||
| Telekterület: | 900 m² | ||||||
| Irányár: | 163,90 millió Ft. | ||||||
| Szobák száma: | 4 | ||||||
| Egyéb helyiség(ek): |
amerikai konyha |
||||||
| Tetőtér: | nem beépíthető | ||||||
| Szintek: | 1 | ||||||
| Állapota: | új építésű | ||||||
| Fűtés típusa: | hőszivattyú | ||||||
| Komfort: | luxus | ||||||
| Parkolás: | teremgarázs | ||||||
| Kilátás: | kertre néző | ||||||
Érdeklődni |
|||||||
|
|||||||
Részletes leírás |
|||||||
|
Jövőbe mutató luxus Szigetszentmiklóson - Fenntarthatóság és kényelem, kompromisszumok nélkül(H tarifa)
Szigetszentmiklós központi, mégis nyugodt részén eladó egy nettó 150 m²-es,(+terasz 36nm) prémium kivitelezésű, teljesen önálló családi ház, 900 m²-es telekkel és dupla garázzsal. Ez az ingatlan nem csupán egy ház, hanem egy befektetés a jövőbe: a kivitelezés már most megfelel a 2026-os építési szabványoknak, így Ön egy technológiai szempontból is élenjáró otthonba költözhet. Műszaki tartalom - Ahol a minőség találkozik a biztonsággal Az épület a legmagasabb, A+ energetikai besorolással rendelkezik. A tulajdonos nyugalmát garancia és referenciákkal rendelkező, megbízható céges kivitelező biztosítja. Műszaki ellenőri vizsgálat a helyszínen bármikor lehetséges. •Zéró rezsi közeli fenntartás: 20 kW-os hőszivattyú, Ariston Hibrid rendszer és H-tarifa gondoskodik a minimális költségekről. •Prémium szerkezet: 30 cm Porotherm falazat, 15 cm-es homlokzati és 30 cm-es födémszigetelés, német REHAU nyílászárók. •Intelligens komfort: 5,5 kW-os hűtő-fűtő klíma (ajándék!), elektromos alumínium redőnyök szúnyoghálóval, RGB LED hangulatvilágítás. , LED csillárok, homlokzat éjszaki fény Tér és design A belső terek elosztása ideális családok számára: tágas, amerikai konyhás nappali, 3 külön hálószoba gardróbbal, prémium burkolatok és szaniterek minden helyiségben. A nappalihoz egy hatalmas és fedett 36 m²-es terasz kapcsolódik. Extra felszereltség: •Parkolás: Dupla garázs + összesen 7 autónak alkalmas beállási lehetőség. •Biztonság: Távfelügyeleti riasztó, videós kaputelefon érintős belépővel. •Kert: Parkosításra előkészített, 900 m²-es saját telek. Finanszírozás: Céges kivitelezés, így CSOK Plusz, Állami támogatások és Zöldhitel is igénybe vehető. Díjmentes, bankfüggetlen hitelügyintézéssel segítjük a vásárlást. ____________________ Ez a ház csalódásmentes választás a minőség szerelmeseinek. Tekintse meg személyesen, és győződjön meg a kivitelezés pontosságáról! |
|||||||
Ajánlás ismerősnek
Az alábbi adatlap kitöltésével ismerőse figyelmébe ajánlhatja a(z) 7221/K30 azonosítójú ingatlant
Adatlap
Kérjük, minden mezőt töltsön ki!


























